STAIRWAY TO HEAVEN

8426 Lufingen, 2025

Wettbewerb auf Einladung

LIFITA AG

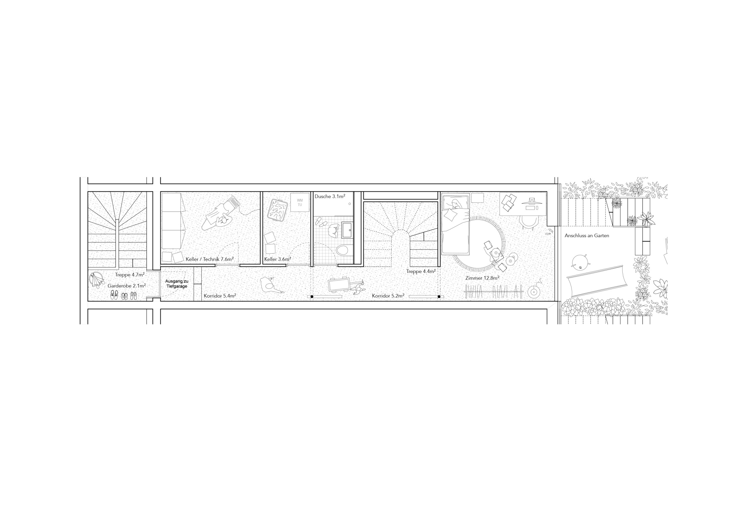
Vier zueinander versetzte Reiheneinfamilienhäuser betten sich in das abfallende Grundstück nahe des Dorfbachs. Eine klare räumliche Organisation mit grosszügiger Treppe im Gebäudeinneren ermöglicht eine flexible Nutzung der Zimmer. Zweiseitige Bezüge zu den Aussenräumen vom Eingangs- und Wohngeschoss sowie vom Untergeschoss bieten ein Maximum an nutzbaren Aussenräumen. Traditionelle Gestaltungselemente aus der Umgebung, wie ein massives Sockelgeschoss und leicht verkleidete Obergeschosse, binden das Haus in den Kontext ein.

STAIRWAY TO HEAVEN

8426 Lufingen, 2025

Wettbewerb auf Einladung

LIFITA AG

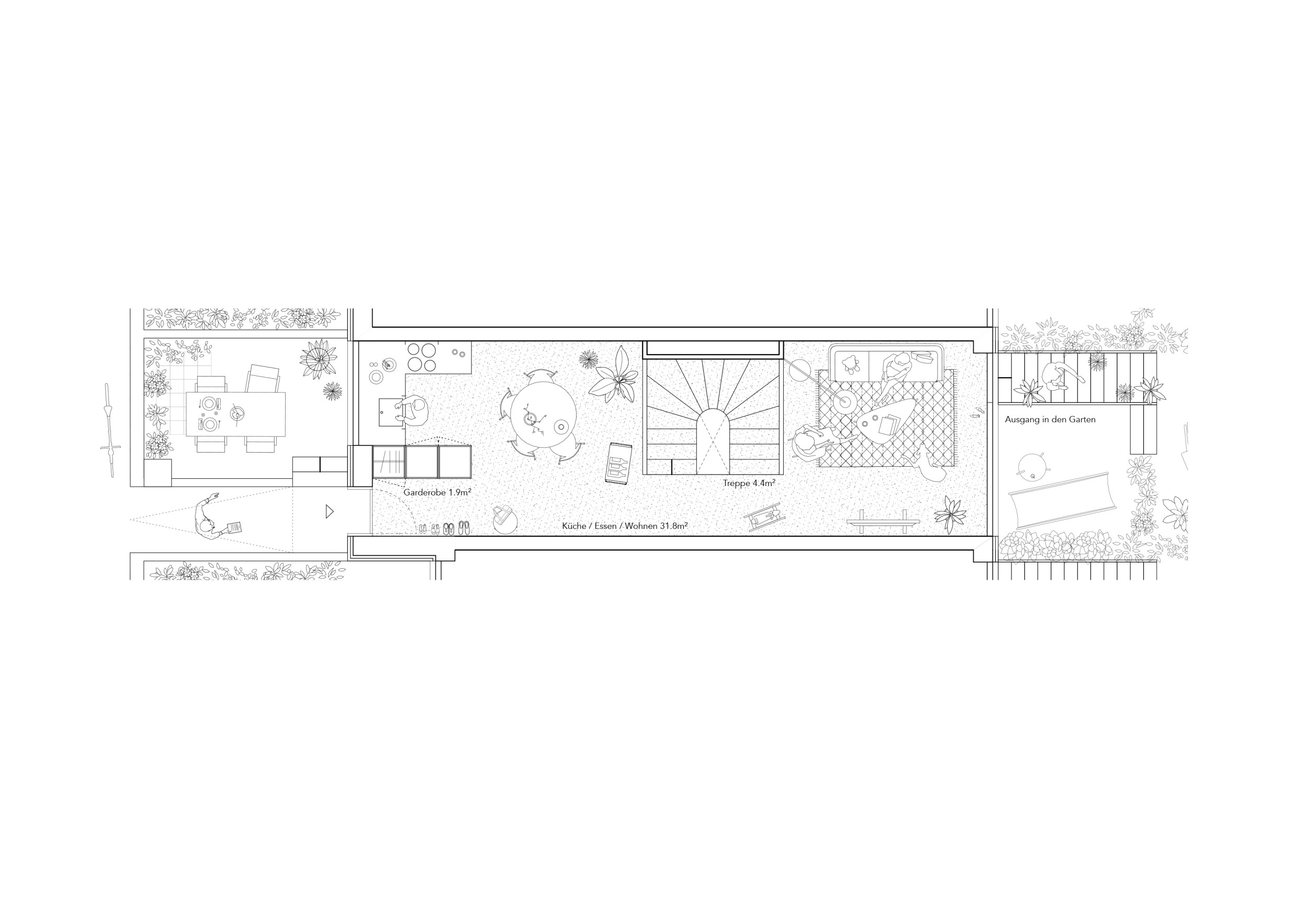
Vier zueinander versetzte Reiheneinfamilienhäuser betten sich in das abfallende Grundstück nahe des Dorfbachs. Eine klare räumliche Organisation mit grosszügiger Treppe im Gebäudeinneren ermöglicht eine flexible Nutzung der Zimmer. Zweiseitige Bezüge zu den Aussenräumen vom Eingangs- und Wohngeschoss sowie vom Untergeschoss bieten ein Maximum an nutzbaren Aussenräumen. Traditionelle Gestaltungselemente aus der Umgebung, wie ein massives Sockelgeschoss und leicht verkleidete Obergeschosse, binden das Haus in den Kontext ein.